Hvor ligger hensettingsområdet?
Avstand fra Oslo: 52,86 km.
Kontaktinformasjon
Tommy Thygesen
Områdeleder Buskerud, Vestfold og Telemark
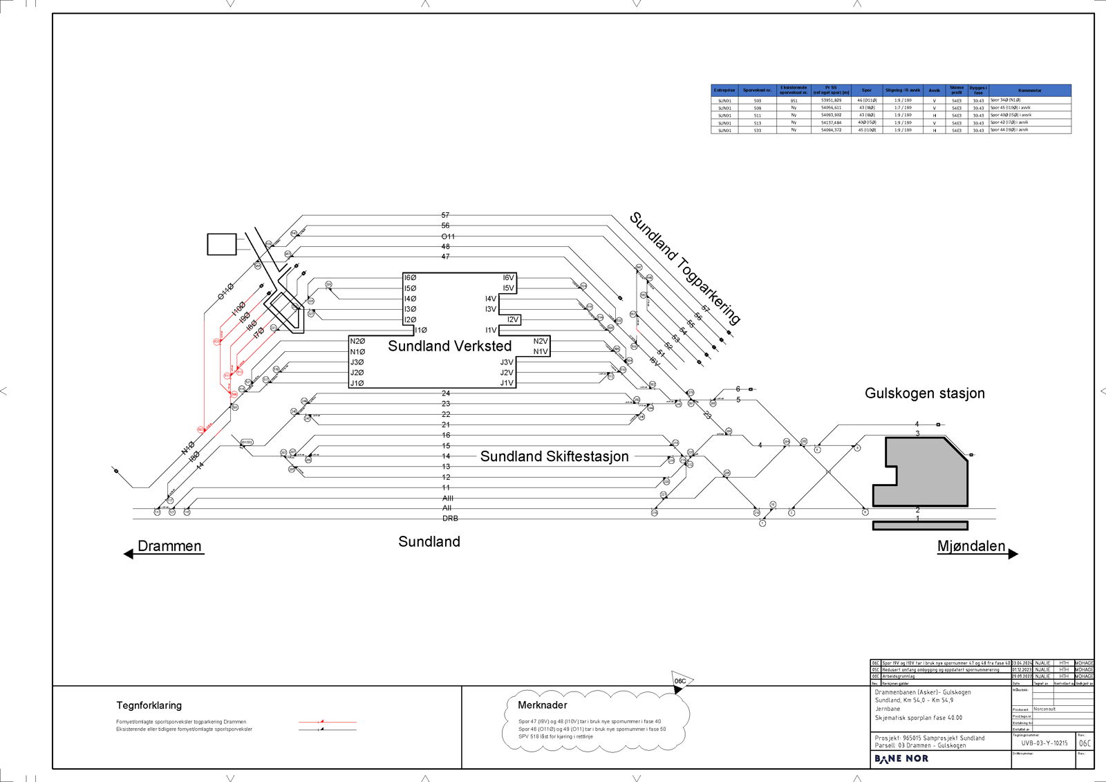
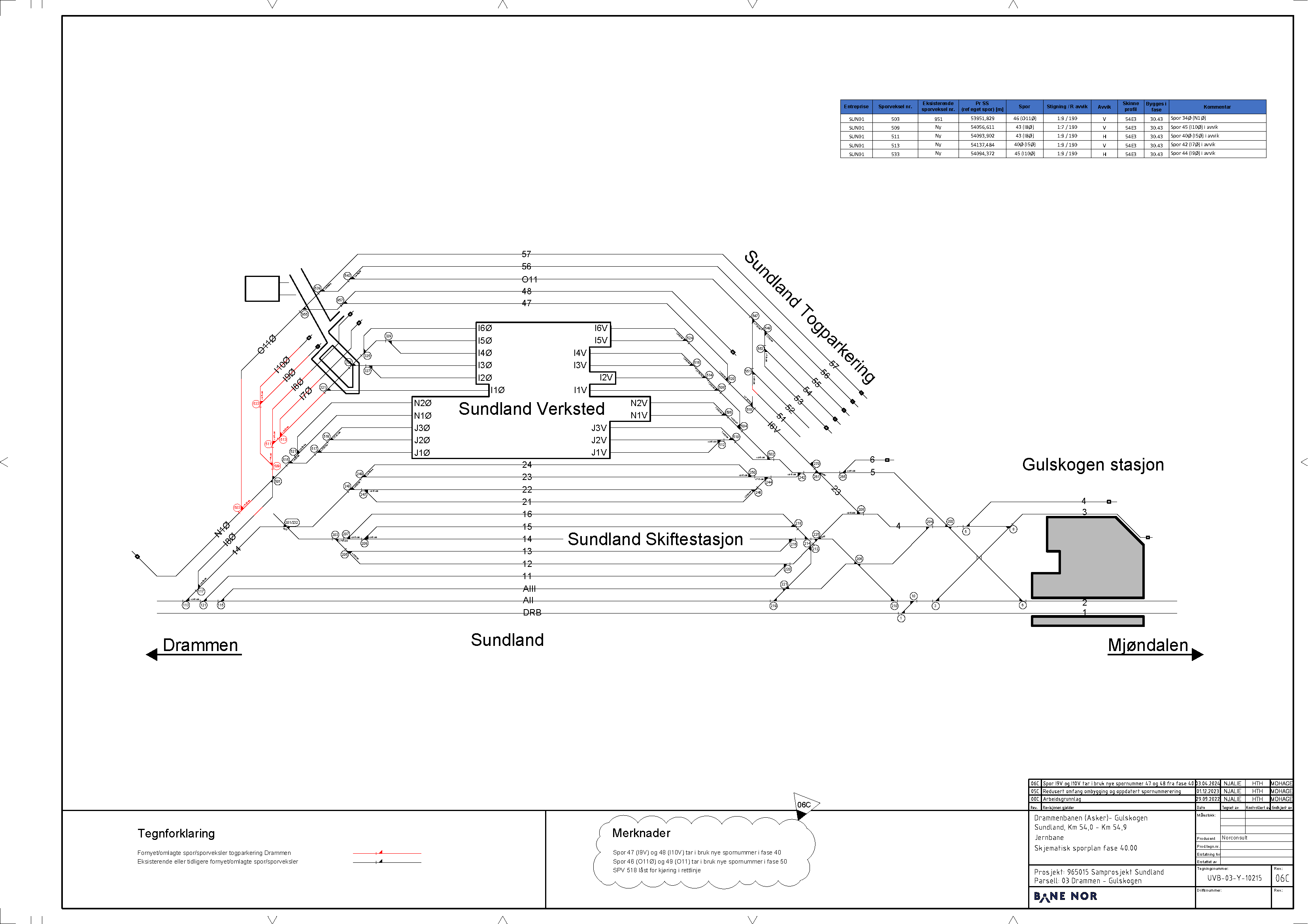
Hensettingskapasitet
| Spor | Hensettings- lengde (m) |
Antall 110 m hensettingsplasser |
KL-anlegg | Serviceplattform | Sportilgang med bil | Toalettømming til stasjonært anlegg | Vannfylling | Togvarme | Tog-vaskemaskin | Dieselanlegg | Bremseluft | Merknader |
|---|---|---|---|---|---|---|---|---|---|---|---|---|
| 24 | 521 | 4 | X | X | – | X | X | – | – | – | – | 220 meter service-plattform fra øst mot vest. |
| 23 | 501 | 4 | X | – | – | – | – | – | – | – | – | |
| 22 | 515 | 4 | X | – | – | – | – | – | – | – | – | |
| 21 | 515 | 4 | X | – | – | – | – | – | – | – | – | |
| 16 | 574 | 5 | X | – | – | – | – | – | – | – | – | |
| 15 | 544 | 4 | X | – | – | – | – | – | – | – | – | |
| 14 | 548 | 4 | X | – | – | – | – | – | – | – | – | |
| 13 | 572 | 5 | X | – | – | – | – | – | – | – | – | |
| 12 | 570 | 5 | X | – | – | – | – | – | – | – | – | |
| 11 | 805 | 7 | X | – | – | – | – | – | – | – | – | |
| AIII | 699 | 6 | X | – | – | – | – | – | – | – | – | |
| AII | 696 | 6 | X | – | – | – | – | – | – | – | – |
Sporplan

Last ned sporplanen
For best oppløsning, last ned PDF-fil.

