Hvor ligger verkstedet?
Kontaktinformasjon
Hans Inge Fuglseth
Serviceanlegg, regionleder
Sportabell og fasiliteter
| Bygning | Spor- nummer | Total sporlengde (m) | KL-anlegg | Gravlengde (m) | Løfteanlegg | Tilgang til takkontroll | Travers-kran/løftebukk | Tine/tørke | Toalettømme-anlegg | Vann-fylling | Togvarme | Tog-vaskemaskin | Kadaver-sanering | Togvekt | Medie-anlegg | Hjul-dreiing | Lakkerings-anlegg | Trykkluft | Merknader |
|---|---|---|---|---|---|---|---|---|---|---|---|---|---|---|---|---|---|---|---|
| Bygg J | J1V | 100 | – | – | 6 á 2 x 40 t | – | 2 x 20 / 6 t | – | – | – | 1000 V | – | – | – | – | – | – | – | |
| Bygg J | J1V-UTE | 83 | – | – | – | – | – | – | – | – | – | – | – | – | – | – | – | – | |
| Bygg J | J1Ø | 100 | – | – | – | – | 2 x 20 / 6 t | – | – | – | 1000 V | – | – | – | – | – | – | – | |
| Bygg J | J1Ø-UTE | 141 | – | – | – | – | – | – | – | – | – | – | – | – | – | – | – | – | |
| Bygg J | J2V | 100 | – | 100 | 16 x 25 t | – | 2 x 20 / 6 t | – | – | – | 1000 V | – | – | – | – | – | – | – | |
| Bygg J | J2V-UTE | 83 | – | – | – | – | – | – | – | – | – | – | – | – | – | – | – | – | |
| Bygg J | J2Ø | 100 | – | – | – | – | 2 x 20 / 6 t | – | – | – | 1000 V | – | – | – | – | – | – | – | |
| Bygg J | J2Ø-UTE | 108 | – | – | – | – | – | – | – | – | – | – | – | – | – | – | – | – | |
| Bygg J | J3V | 100 | – | – | 6 á 2 x 40 t | – | 2 x 20 / 6 t | – | – | – | 1000 V | – | – | – | – | – | – | – | |
| Bygg J | J3V-UTE | 117 | – | – | – | – | – | – | – | – | – | – | – | – | – | – | – | – | |
| Bygg J | J3Ø | 100 | – | – | – | – | 2 x 20 / 6 t | – | – | – | 1000 V | – | – | – | – | – | – | – | |
| Bygg J | J3Ø-UTE | 108 | – | – | – | – | – | – | – | – | – | – | – | – | – | – | – | – | |
| Bygg N | N1-Vest | 117 | X | 110 | 20 x 22 t | X | 16 t /,5 t | X | X | X | 1000 V | – | – | – | – | – | – | – | |
| Bygg N | N1-Vest-UTE | 127 | X | – | – | – | – | – | – | – | – | – | – | – | – | – | – | – | |
| Bygg N | N1-Øst | 117 | X | 110 | 24 x 22 t | – | 16 t /,5 t | – | – | – | 1000 V | – | – | X | – | – | – | – | |
| Bygg N | N1-Øst-UTE | 155 | X | – | – | – | – | – | – | – | – | – | – | – | – | – | – | – | |
| Bygg N | N2-Vest | 117 | X | 110 | – | X | 16 t /,5 t | X | X | 400 / 1000 V | – | – | – | – | – | – | – | ||
| Bygg N | N2-Vest-UTE | 128 | X | – | – | – | – | – | – | – | – | – | – | – | – | – | – | – | |
| Bygg N | N2-Øst | 117 | X | 110 | – | – | 16 t /,5 t | X | X | X | 1000 V | – | – | – | – | – | – | – | |
| Bygg N | N2-Øst-UTE | 156 | X | – | – | – | – | – | – | – | – | – | – | – | – | – | – | – | |
| Bygg I | I1 | 71 | X | – | – | – | – | – | – | – | – | – | – | – | – | X* | – | ISO8573-1 klasse 1-2-1 | *Undergulvsbenk |
| Bygg I | I2 | 114 | X | 67 | – | – | – | – | X | X | – | – | – | – | – | – | – | – | Stenger automatisk når innetemperaturen er under 4 °C. |
| Bygg I | I3 | 93 | X | 85 | – | X | – | – | – | – | – | – | – | – | – | – | – | – | |
| Bygg I | I4 | 93 | X | 85 | – | X | – | – | – | – | – | – | – | – | – | – | – | – | |
| Bygg I | I5 | 108 | X | 90 | – | – | – | – | – | – | – | – | – | – | – | – | – | – | |
| Bygg I | I6 | 108 | X | 90 | – | X | – | – | – | – | – | – | – | – | – | – | – | – |
Maskiner og utstyr nevnt i tabellen har tekniske og ytelsesmessige begrensninger. For ytterligere informasjon eller spesifikke avklaringer knyttet til togmateriell, ta kontakt med Bane NOR.
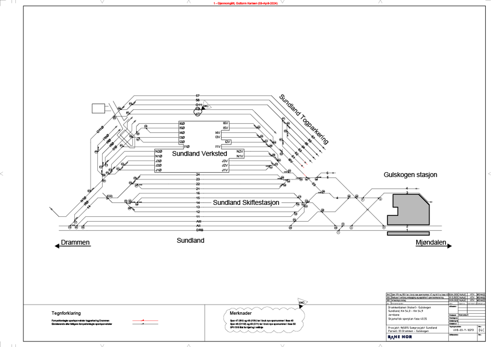
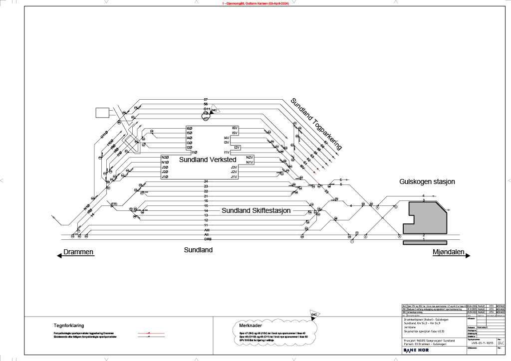
Sporplan

Last ned sporplanen
Sporplanen er gyldig fra og med september 2024.
Verkstedhåndboken Ekstern lenke
Viktige krav og lovverk du må følge når du bruker Bane NOR Eiendoms verksteder.
Om verkstedet
Kontakt oss for mer informasjon om anlegget.

