Hva bygger vi og hvorfor?
Elektrifiseringen av Trønder- og Meråkerbanen legger til rette for mer moderne og miljøvennlige tog, bedre komfort og større kapasitet både for person- og godstrafikk. I tillegg sikrer det en sømløs og bærekraftig reise over landegrensen til Sverige.
Sammen med flere store og små byggeprosjekter som nå pågår på jernbanen i Trøndelag, vil elektrifiseringen gi et kraftfullt løft på samferdselsområdet i regionen. Utbyggingen var planlagt ferdigstilt innen utgangen av 2024, men vi har hatt problemer med fremdriften på grunn av uforutsette utfordringer, derfor er sluttdatoen utsatt til utgangen av 2025.
Det er første gang siden elektrifiseringen av Dovrebanen i 1970 at en jernbanestrekning i Trøndelag blir elektrifisert.

Når de aktuelle banestrekningene står klare for drift av elektriske tog, vil reisende og godstransportører få et langt bedre jernbanetilbud. Moderne persontog har bedre komfort, enklere av- og påstigning og nesten dobbelt så mange sitteplasser som i dag. Godstransportørene får anledning til å kjøre togene både billigere og noe raskere enn hva man kan i dag, og det blir mulig å kjøre lengre tog. Motorstøyen fra elektriske tog er også betydelig mindre enn ved dieseldrevne tog, og utslipp av klimagasser reduseres.
På Meråkerbanen betyr elektrifiseringen at det blir et forbedret tilbud for godstransport mellom Norge og Sverige, all den tid jernbanen allerede er elektrifisert på svensk side fram til norskegrensen ved Storlien. Meråkerbanen blir en strategisk viktig banestrekning med tanke på muligheten for omkjøring mellom Trøndelag og Østlandet. Den blir også et sentralt bindeledd mellom det norske og det nordiske jernbanenettet. Ikke minst vil strekningen kunne tilby et langt bedre tilbud med persontog lokalt inn mot svenskegrensen og til utfartsdestinasjoner både i Meråker og Åre, for å nevne noe.
Elektrifisering av Trønder- og Meråkerbanen innebærer en investering på ca. 2,4 milliarder kroner.
Video fra prosjektet
Nyttig informasjon
Her finner du brosjyrer som gir informasjon om miljøgevinst og bærekraft ved bruk av elektrisk drevet tog samt hvordan du forholder deg til elektrisk jernbane.
Milepæler i prosjektet
Vi bygger ut Trønder- og Meråkerbanen for elektrisk drift i etapper, slik at effekten kan tas ut så tidlig som mulig. I alt skal det investeres 2,4 milliarder kroner for å elektrifisere 120 km bane. Her får du siste nytt om status for arbeidet.

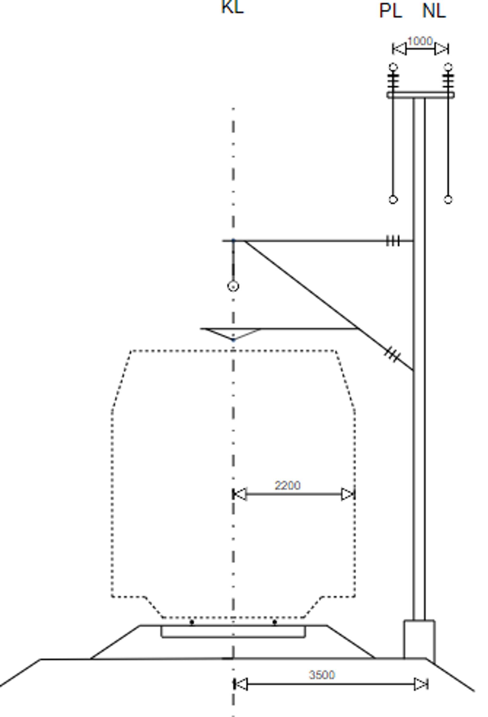
Når vi elektrifiserer Trønder- og Meråkerbanen, så betyr det at togene på strekningen nå skal kjøre på strøm fremfor diesel. Det innebærer også at vi må sette opp et nytt anlegg, som på fagspråket kalles kontaktledning (KL) og autotransformatorsystem (AT). KL/AT-ledningene festes i master langs sporet, og forsyner toget med strøm.
Overgangsbruene er ferdigstilt
For å få plass til de nye KL/AT-anleggene, har vi økt høyden på mange av dagens bruer over sporet. Dette arbeidet ble utført fra våren 2021 til januar 2023.
Arbeidet med elektrifiseringen
Arbeidene med KL/AT-anleggene startet sommeren 2021. Arbeidet består av boring av fundamenter for master, utplassering av master, montering av utstyr i mastene og strekking av kontaktledning.
Trønderbanen (Nordlandsbanen)
På Trønderbanen er vi nå ferdige med å bygge kontaktledningsanlegget, med unntak av strekningen Trondheim - Leangen, som ferdigstilles før sommeren 2025. Nå pågår det kontroller og testing av anlegget, før det etter planen kan tas i bruk for elektrisk togdrift innen utgangen av 2025.
Merkåkerbanen
På Meråkerbanen, som er omtrent sju mil lang, er mye av arbeidet med kontaktledningsanlegget ferdig montert mellom Riksgrensen og Gudå. Mellom Gudå og Hell er vi ferdig med å strekke AT-liner, og det jobbes per nå med å montere utstyr i mastene, for å forberede til montering av kontaktledninganlegget.
I utgangspunktet skulle arbeidene ha vært ferdigstilt i 2024, men på denne strekningen har vi utfordringer med fremdriften. På grunn av uforutsette utfordringer, som samlet sett har gitt økt arbeidsomfang spesielt for KL/AT arbeidet.
Stavne-Leangen banen
På Stavne-Leangenbanen er arbeidene ferdigstilte, og vi jobber nå med kontroller og testing av anlegget. I løpet av våren blir vi også ferdige med å ferdigstille og koble anlegget mot eksisterende kontakledningsanlegg på Dovrebanen.
Hell omformerstasjon leverer strøm til jernbanen i Trøndelag
Parallelt har vi bygd en ny omformerstasjon på Hell, som sto ferdig høsten 2024. Når Trønder- og Meråkerbanen er ferdig elektrifisert, er det Hell omformerstasjon som vil levere strøm til jernbanen i store deler av Trøndelag.
Frem til sommeren 2025 pågår det testing av omformerstasjonen mot det elektriske anlegget på Nordlandsbanen og Stavne - Leangenbanen. Dette gjør vi for å kontrollere at anlegget fungerer som det skal.

Vi er nå ferdige med store deler av arbeidene i prosjekter på Nordlandsbanen og Stavne - Leangenbanen. Der gjennstår kun kontroller, testing og opprydning.
Etter planen skal anlegget på Meråkerbanen være ferdigstilt i løpet av sensommeren/ tidlig høst 2025. Deretter vil det også bli gjennomført tester og kontroller på den strekningen, før hele anlegget vil være klart for elektrisk togdrift i innen utgangen av 2025.

Om arbeidet med overgangsbruene
Totalt er det 37 overgangsbruer på strekningene som skal elektrifiseres. Av disse var det 34 bruer som krevde en eller annen form for tiltak i dette prosjektet. Arbeidene, som ble avsluttet i januar 2023, har vært fordelt på ulike entrepriser.

Bakgrunnen for arbeidene med overgangsbruene
Når vi elektrifiserer banestrekningene må vi forholde oss til et minstekrav til fri høyde mellom spor og undersiden av brua. Dette må overholdes for å få plass til kontaktledningsanlegget. I tillegg må det monteres beskyttelsesskjermer mot strømførende deler samt etableres tett dekke på brua, slik at det ikke kan renne vann ned på kontaktledningsanlegget.
Det var 15 overgangsbruer som kun trengte beskyttelsesskjerm. De er tatt med i totalentreprisen på KL/AT-anlegget (kontaktledning med autotransformatorer) som tilfører togene kjørestrøm. De resterende 19 bruene, som krevde ytterligere tiltak, ble tatt ut i en egen totalentreprise. 13 av disse bruene er revet og 8 av dem er erstattet med nye bruer. Følg denne lenken for å se oversikt over overgangsbruene i denne totalentreprisen.
Totalentreprisen for overgangsbruene ble lyst ut 2. oktober 2020. Den 22. april 2021 signerte Bane NOR kontrakten med BMO Entreprenør om rehabilitering, sanering og bygging av nye bruer på strekningene Trondheim S-Stjørdal og Hell-riksgrensen.
Nabo til jernbanen?
Nabovarsel for Trønder- og Meråkerbanen
Her kan du følge med på fremdriften i prosjektet og varsling av støyende arbeid om natten.
Berørte toglinjer
Arbeidet med å elektrifisere Trønder- og Meråkerbanen blir hovedsakelig gjennomført på natten når det ikke går tog. Strekningene vil likevel kunne være berørt til ulike tidspunkt, blant annet deler av driftsdøgnet i helgene på Trønderbanen, men vi gjør det vi kan for ikke å berøre togavgangene mer en høyst nødvendig. Se NÅ-appen for mer nøyaktig informasjon om reisen din.
Teknisk om elektrifiseringen
Kontaktledningsanlegget sørger for kontinuerlig overføring av den elektriske energien fra matestasjonene til togene. Strømmen til togene kommer til lokomotivet via kontaktledningsanlegget, går gjennom lokomotivenes strømavtaker og gjøres om til trekkraft i de elektriske motorene.
Vi skal bygge et kontaktledningsanlegg etter system 20 med autotransformatorer og elutforming E. Dette kan du lese mer om her:
(https://trv.banenor.no/wiki/Kontaktledning/Prosjektering_og_Bygging/Elektrisk_utforming) (åpnes i ny fane)

Kontaktledningsanlegget sørger for kontinuerlig overføring av den elektriske energien fra matestasjonene til togene. Strømmen til togene kommer til lokomotivet via kontaktledningsanlegget, går gjennom lokomotivenes strømavtaker og gjøres om til trekkraft i de elektriske motorene.
Matestasjonene leverer ut en spenning på 16 500 V og med en frekvens på 16 2/3 Hz til togene. Kontaktledningsanlegget består av flere komponenter som ledninger, master, brytere og anlegg for returstrøm.
Autotransformatorsystem er utformet for å doble spenningen i overføringen mellom omformerstasjon og tog fra 15 kV nominelt til 30 kV nominelt. Det brukes for å oppnå både god elektrisk kapasitet og kapasitet for en matestrekning, slik at man kan kjøre mange tog og tog med stor effekt, og samtidig ha stor avstand mellom omformerstasjonene.
Konseptet med autotransformatorsystem går i hovedsak ut på at det bygges to langsgående høyspentledere, én positiv og én negativ leder (PL og NL). Det er +/- 15 kV spenning langs hele strekningen og en spenningsforskjell på 30 kV mellom PL og NL.
Ved om lag hver 10. kilometer plasserer vi autotransformatorer i egne bygg/kiosker. Kontaktledningen seksjoneres og mates fra høyspentledningen, slik at hver seksjon med kontaktledning koordineres med hovedsignalene på strekningen.
PL og NL føres normalt som blanke ledninger på toppen av kontaktledningsmastene, men kan legges i kabler der det ikke er plass på mastene.
Omformerstasjoner er bindeleddet mellom det ordinere elektriske forsyningsnettet og jernbanenettet. De produserer ikke elektrisk energi, men omformer energi fra “vanlig 50 Hz strøm” til “16,7 Hz togstrøm”.
De to elektriske nettene opererer ikke på samme frekvens og spenningsnivå, og kan derfor ikke kobles sammen uten en omformer som bindeledd.
Arbeidet omfatter bygging av en ny omformerstasjon for elektrisk omforming fra trefase 132 kV, 50 Hz til tofase 15 kV, 16,7 Hz. Omformerstasjonen, inkludert grunnarbeider, bygges etter to totalentrepriser hhv «Grunnarbeider og tomt» og «Omformerstasjon». Omformerstasjonen vil bli utrustet med 2x30 MVA (megavoltampere) moderne, statiske omformere.
Det er Hitachi Energy Norway AS som bygger omformerstasjonen, og det er Tverås Maskin & Transport AS som har gjort tomten byggeklar.
Kontaktinformasjon
Har du spørsmål om elektrifiseringen, er du velkommen til å ta kontakt med oss. Du treffer oss lettest på e-post eller telefon.
Nabotelefonen er betjent mellom klokken 0900 og klokken 1500 alle arbeidsdager til og med 31. desember 2025. Det er ikke mulig å legge igjen beskjed eller sende sms til denne telefonen.
Nabotelefon
(+47) 901 34 905 Starter oppringing
ElektrifiseringTM@banenor.no (Åpner ditt e-postprogram)
Besøksadresse: Osloveien 105, 7017 Trondheim
Fakturaadresse: Postboks 4350, 2308 Hamar
Bane NORs kundesenter har åpent utover dette og kan kontaktes på e-post kundesenter@banenor.no eller telefon 477 70 098.
Kundesenterets åpningstider er:
08:00-19:00 (mandag-fredag)
09.00-15.00 (lørdag/søndag/helligdager)
Kontaktpersoner
John Petter Reklev
Prosjektsjef
Kirsten McDonagh
Senior kommunikasjonsrådgiver
Nyheter fra prosjektet
Nå skrur vi på strømmen på Meråkerbanen
Fra og med lørdag 1.november 2025 setter vi på strøm på det nye høyspentanlegget på Meråkerbanen, fra Eidum til Riksgrensen.

Elektrifisering av Trønder- og Meråkerbanen nærmer seg ferdigstillelse
Elektrifiseringen av Trønder- og Meråkerbanen går nå inn i sluttfasen. I løpet av sommeren og høsten vil vi nå en rekke viktig milepæler.

Åpner Meråkerbanen
På grunn av arbeidet med elektrifisering av Trønder -og Meråkerbanen har trafikken på Meråkerbanen vært stengt siden 15. august 2024. Etter seks måneders iherdig arbeid, ble Meråkerbanen åpnet igjen 1. februar, noe som var innen normert tid.

