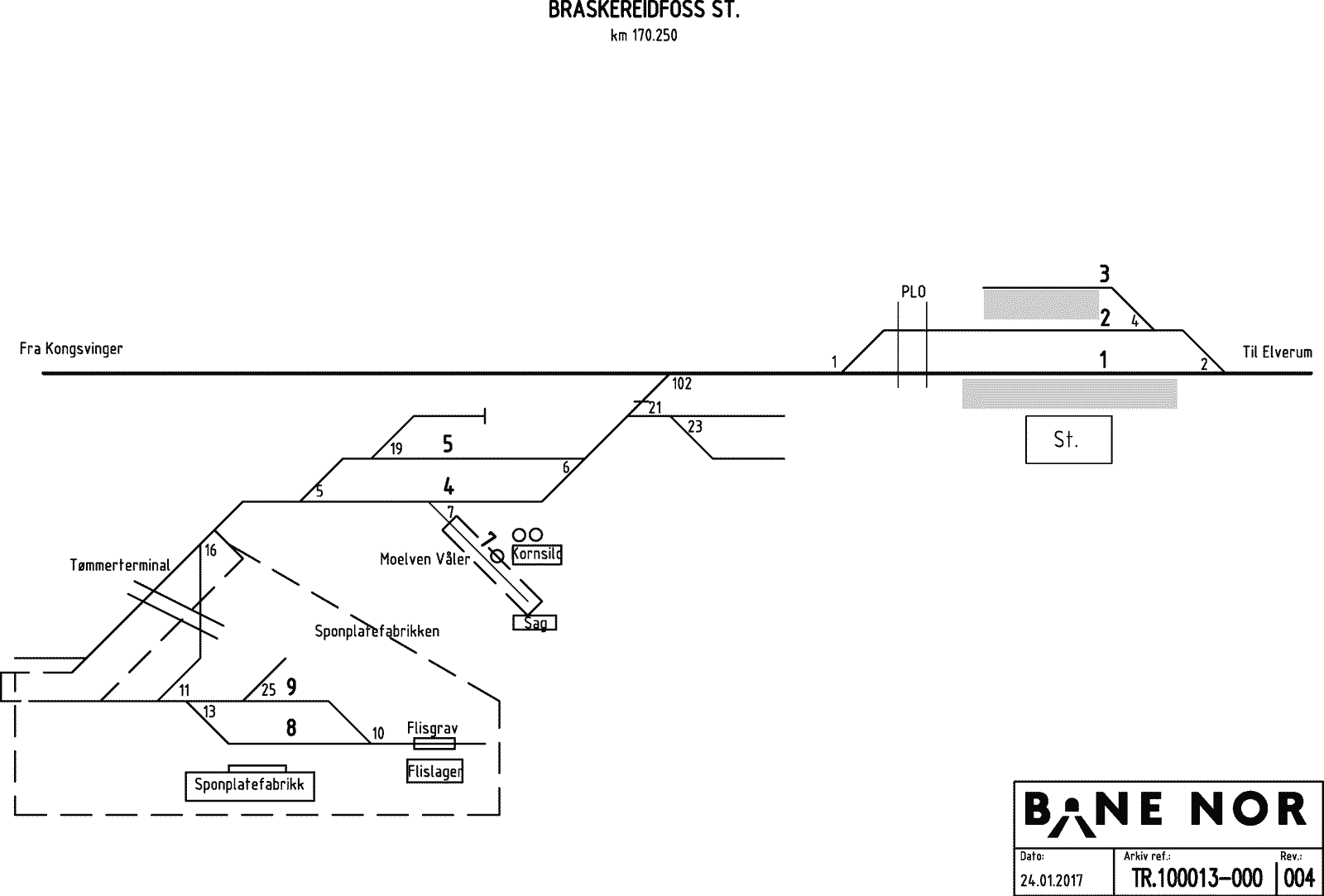
Braskereidfoss stasjon
Stengt for persontog
Braskereidfoss stasjon ligger på Solørbanen i Våler i Innlandet. Stasjonen er stengt for persontrafikk.

Om stasjonen
Persontog stopper ikke her.
Beliggenhet
- Avstand fra Oslo S: 170,26 km
- Kommune: Våler
- Strekning: Kongsvinger–Elverum
- Bane: Solørbanen
- Moh: 183

| Spor | Plattform | Merknader | ||||||
|---|---|---|---|---|---|---|---|---|
| Nr. | Type | Lengde (m) | Kryssingsspor- lengde (m) |
Forlenget (m) | Lengde (m) | Høyde (mm) | Bredde (m) | |
| 1 | Hovedtogspor | 1224 | 627 | 56 | 300 | 8,50 |
Sideplattform Dekker spor 1 og 1 Enkelt innkjør A til enkelt innkjør B |
|
| 2 | Togspor | 731 | 627 | Spv1 – Spv2 | ||||
| 4 | Øvrige spor | 58 | SSP – SPV 102 | |||||